[LC.01] - Whisky Bar (SR)
-
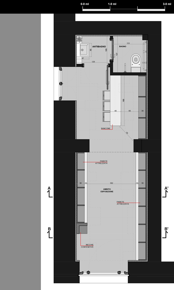
Elaborati ArchitettoniciPianta[LC.01] - Whisky Bar (SR) -
Elaborati ArchitettoniciSezioni[LC.01] - Whisky Bar (SR) -
Elaborati EsecutiviOpere Edili 01[LC.01] - Whisky Bar (SR) -
Elaborati EsecutiviOpere Edili 02[LC.01] - Whisky Bar (SR) -
Elaborati EsecutiviOpere Edili 03[LC.01] - Whisky Bar (SR) -
Elaborati EsecutiviOpere Edili 04[LC.01] - Whisky Bar (SR) -
Elaborati EsecutiviOpere Edili 05[LC.01] - Whisky Bar (SR) -
Elaborati EsecutiviOpere Impiantistiche 01[LC.01] - Whisky Bar (SR) -
Elaborati EsecutiviOpere Impiantistiche 02[LC.01] - Whisky Bar (SR) -
RenderingVista 01 - Ipotesi A[LC.01] - Whisky Bar (SR) -
RenderingVista 01 - Ipotesi B[LC.01] - Whisky Bar (SR) -
RenderingVista 02 - Ipotesi A[LC.01] - Whisky Bar (SR) -
RenderingVista 02 - Ipotesi B[LC.01] - Whisky Bar (SR) -
RenderingVista 02 - Ipotesi C[LC.01] - Whisky Bar (SR) -
RenderingVista 03[LC.01] - Whisky Bar (SR) -
RenderingVista 04[LC.01] - Whisky Bar (SR)